Bau
Innovative Bauweise in Bergstedt Titel 2: Nachhaltiger Bau in Bergstedt
Das Baukonzept in Bergstedt setzt auf nachhaltige Materialien und energieeffiziente Bauweisen. Der Einsatz von Holz und anderen ökologischen Baustoffen sorgt für ein gesundes Raumklima. Alle Gebäude entsprechen hohen energetischen Standards, um den Energieverbrauch zu minimieren. Die Bauweise ist auf Langlebigkeit und geringe Instandhaltungskosten ausgelegt. Flexible Grundrisse ermöglichen eine vielseitige Nutzung der Räume, die optimal auf die Bedürfnisse der Bewohner abgestimmt sind.
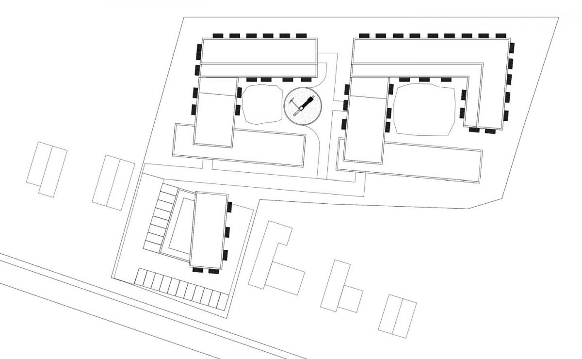
Kennwerte zum vorliegenden Entwurf:
Grundstück: ca. 7.500 m²
Volumenentwurf Grundfläche: 2.700 m² - GRZ 0,37 (vgl. direkte Umgebung: 0,14-0,21, weitere Umgebung bis max. 0,31)
Bruttogeschosse: 9.900 m² (Verwaltung und Wohnen) - GFZ 1,3
Geschätzte Wohneinheiten (bei hauptsächlich WE für 1-2 Pers.): 130 WE
Stellplätze: PKW 24, Fahrräder 40
Regenrückhaltung: min. 380 m² Mulde erforderlich, ist beim aktuellen Volumenentwurf genau in den Höfen umsetzbar.
Feuerwehrumfahrt möglich
Innovative Fassadengestaltung und nachhaltige Kubatur in Abstimmung mit der Stadtentwicklung
Nachhaltige Gebäudegestaltung
Modernes Gebäude integriert Solarenergie für Effizienz.
Die Fassadengestaltung und die Kubatur des Bergstedt Wohnquartiers sollen in enger Abstimmung erfolgen mit Herrn Dipl.-Ing. Franz-Josef Höing, dem Oberbaudirektor in der Behörde für Stadtentwicklung und Wohnen der Freien und Hansestadt Hamburg.
Diese Wegweisung im Kontext der Magistralenentwicklung stellt sicher, dass die architektonische Gestaltung des Projekts den städtebaulichen Vorgaben und ästhetischen Standards der Stadt Hamburg entspricht. Durch die Abstimmung mit Herrn Höing wird gewährleistet, dass das Wohnquartier harmonisch in die bestehende Umgebung integriert wird und gleichzeitig innovative und zeitgemäße Gestaltungselemente in einem zu schaffenden Solitär berücksichtigt.
Durch die geplante Bebauung mit einer Höhe von 6,50 Metern entlang der Magistrale, drei Geschossen plus Staffelgeschoss am Übergangsbauteil sowie vier Geschossen plus Staffelgeschoss auf dem Flurstück 1535 wird ein beschleunigtes Bauen ermöglicht. Der Verzicht auf eine Tiefgarage oder einen Keller reduziert die Bauzeit erheblich und vereinfacht die Bauausführung. Diese Maßnahmen tragen dazu bei, das Projekt effizienter und schneller zu realisieren, was den Anforderungen des Baulandbeschleunigungsgesetzes entspricht und gleichzeitig eine kosteneffiziente und nachhaltige Entwicklung sicherstellt. Der ökologische Fußabdruck des Projekts wird reduziert.
In den oberen Geschossen des Bergstedt Wohnquartiers sollen nach Möglichkeit fassadenintegrierte Solarmodule installiert werden. Diese Module bieten eine innovative Lösung, um Wirtschaftlichkeit, Ökologie und Design miteinander zu verbinden. Da die Preise für Solarmodule voraussichtlich weiter sinken werden, können sie kosteneffizient in die Gebäudefassade integriert werden. Dies trägt nicht nur zur nachhaltigen Energiegewinnung bei, sondern fügt sich auch ästhetisch ansprechend in die Architektur des Quartiers ein. Durch die Nutzung dieser Technologie wird das Wohnquartier sowohl ökologisch als auch wirtschaftlich zukunftsfähig gestaltet.
Eine Dachneigung von 2 % ist vorgesehen.
Die Planung des Bergstedt Wohnquartiers sieht die Integration von aufgeständerten, vorgesetzten Balkonen vor:
Erweiterung des Wohnraums: Aufgeständerte, vorgesetzte Balkone erweitern den nutzbaren Wohnraum jeder Einheit, ohne die Grundfläche des Gebäudes zu beeinträchtigen. Sie bieten den Bewohnern zusätzlichen Freiraum im Außenbereich, der für Erholung und Freizeit genutzt werden kann.
Verbesserung der Belichtung: Durch die vorgesehene Bauweise werden die Balkone vor die Fassade gesetzt, wodurch die natürliche Belichtung der dahinterliegenden Wohnräume nicht beeinträchtigt wird. Dies fördert eine helle und freundliche Wohnatmosphäre.
Gestalterische Flexibilität: Vorgesetzte Balkone bieten eine hohe gestalterische Flexibilität. Sie können als Gestaltungselement genutzt werden, um der Fassade Struktur und Tiefe zu verleihen, was zur ästhetischen Qualität des Wohnquartiers beiträgt.
Nachträgliche Anpassungsmöglichkeiten: Die aufgeständerte Konstruktion ermöglicht es, Balkone auch nachträglich zu ergänzen oder bei Bedarf zu modifizieren, ohne größere Eingriffe in die Gebäudestruktur vornehmen zu müssen. Dies bietet Flexibilität in der langfristigen Nutzung und Wartung.
Verbesserte Luftzirkulation: Da die Balkone vorgesetzt sind, fördern sie eine bessere Luftzirkulation rund um das Gebäude. Dies kann das Mikroklima in den Wohnräumen positiv beeinflussen und zur Verbesserung des Raumklimas beitragen.
Minimale Beeinträchtigung der Gebäudehülle: Aufgeständerte Balkone verringern das Risiko von Wärmebrücken, da sie nicht direkt in die Gebäudehülle integriert sind. Dies trägt zur Energieeffizienz der Wohngebäude bei und reduziert potenzielle Instandhaltungskosten.
Schnelles und nachhaltiges Bauens im Einklang mit den Vorgaben des Baulandmobilisierungsgesetzes
Architekturplanung am Arbeitsplatz
Fachmann entwirft detaillierte Baupläne für moderne Strukturen.y
Für das Bergstedt Wohnquartier wird ein Generalunternehmer (GU) ausgewählt, der die Gesamtverantwortung für die Bauausführung übernimmt. Geplant ist, gezielt regionale Handwerksbetriebe einzubinden, um lokale Expertise zu nutzen und die regionale Wirtschaft zu stärken. Diese Zusammenarbeit ermöglicht eine hohe Ausführungsqualität und fördert die Verbundenheit des Projekts mit der Region. Zudem tragen die kurzen Lieferwege zur Nachhaltigkeit bei. All dies unterstützt das Ziel eines schnellen und nachhaltigen Bauens im Einklang mit den Vorgaben des Baulandmobilisierungsgesetzes.
Bewertung der Bebauungsdichte unter Berücksichtigung der Projektziele und Rahmenbedingungen
Eine Bebauung von 50 % des Grundstücks kann im Kontext des Bergstedt Wohnquartiers als angemessen betrachtet werden, insbesondere unter den gegebenen Rahmenbedingungen und Zielen des Projekts.
Hier sind einige Gründe, warum diese Bebauungsdichte sinnvoll ist:
Optimale Flächennutzung: Die geplante Bebauung mit einer Höhe von 6,50 Metern entlang der Magistrale, drei Geschossen plus Staffelgeschoss am Übergangsbauteil und vier Geschossen plus Staffelgeschoss auf dem Flurstück 1535 ermöglicht eine effiziente Nutzung der Grundstücksfläche. Durch diese vertikale Bebauung wird der vorhandene Raum optimal ausgenutzt, ohne dass eine zu dichte Bebauung entsteht, die das Quartier überladen wirken lässt.
Servicekonzept: Durch die geplante Bebauungsstruktur kann ein umfassendes Servicekonzept umgesetzt werden. Die Anordnung der Gebäude und die effiziente Flächennutzung ermöglichen die Integration von Gemeinschaftseinrichtungen und Dienstleistungen, die den Bewohnern zugutekommen. Dazu gehören möglicherweise gemeinschaftliche Bereiche, wie Aufenthaltsräume, Dienstleistungen vor Ort und ein kleiner ein Mobility Hub.
Verzicht auf Tiefgarage und Keller: Der Verzicht auf eine Tiefgarage oder einen Keller vereinfacht die Bauausführung erheblich und reduziert die Bauzeit. Dies führt nicht nur zu einer schnelleren Realisierung des Projekts, sondern auch zu einer Kosteneinsparung. Gleichzeitig wird das Quartier durch den Verzicht auf tiefere Baumaßnahmen weniger in die Umgebung eingreifen, was ökologisch vorteilhaft sein kann. Zwei m² Abstellfläche sind in den Wohnungen und vier m² Abstellfläche pro Wohneinheit sind im Objektvorgesehen und müssen in Dunkelbereichen untergebracht werden.
Grünflächen und Freiräume: Eine Bebauung von 50 % lässt ausreichend Raum für die Knicke, Gärten und andere Außenbereiche, die zur Lebensqualität der Bewohner beitragen. Diese Freiräume sind wichtig für das Wohlbefinden, fördern das soziale Miteinander und tragen zur ökologischen Balance des Quartiers bei. Dieses ist angebunden an den Wanderweg und ermöglicht Waldspaziergänge am Fluss.
Städtebauliche Integration: Die vorgeschlagene Bebauungshöhe und -dichte fügen sich gut in das städtebauliche Umfeld ein und respektieren die örtlichen Gegebenheiten. Eine ausgewogene Bebauung von 50 % des Grundstücks sorgt dafür, dass das Quartier sich harmonisch in das bestehende Stadtbild integriert und gleichzeitig ausreichend Wohnraum bietet.
Baumwipfelhöhe: Die Baumwipfelhöhe des umgebenden Baumbestandes beträgt mehr als 20 Meter.
